中古一戸建て堺市堺区八千代通
◆2025年10月リフォーム済 ◆3LDK ◆オール電化住宅
【2025年10月リフォーム内容】
キッチン新調、電気温水器新調、トイレ新調、洗面化粧台交換、クロス張替、CF張替、襖・障子張替、畳表替、他
物件概要
- 所在地
- 堺市堺区八千代通
- 価格
- 3,280 万円
- 交通
-
南海電鉄高野線 堺東駅 まで 徒歩22分
阪堺線 寺地町駅 まで 徒歩14分
- 接道状況
- 北東側 公道5.5m 間口約5.4m 有
- 土地面積
- 113.81㎡ (34.42坪)
- 建物面積
- 116.00㎡ (35.08坪)
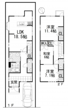
- 間取り
- 3LDK
- 築年数
-
2008年
(平成20)
3月
築17年 - 建ぺい率
- 60%
- 容積率
- 200%
- 土地権利
- 所有権
- 構造および階数
- 木造 地上2階建
- 小学校区
- 少林寺
- 中学校区
- 陵西
- 私道負担
- 地目
- 宅地
- 現況
- 空
- 引渡時期
- 相談
- 駐車場
- 有
- 上水道
- 公共
- 下水道
- 公共
- ガス
- 都市計画
- 市街化区域
- 用途地域
- 2種住居
- 設備・条件
- システムキッチン、IHクッキングヒーター、オール電化、シャンプードレッサー、洗浄便座、モニタ付インターホン、トイレ2箇所
- 備考
- 取引態様
- 仲介

