マンションエステム堺萩原天神
◆南海高野線「萩原天神」駅徒歩4分の立地 ◆ペット飼育可(規約有) ◆室内きれいにご使用です
【周辺施設】
・堺日置荘郵便局(約270m)
・セブンイレブン初芝駅東店(約450m)
・ローソンストア100萩原天神駅前店(約450m)
物件概要
- 所在地
- 堺市東区日置荘西町3丁
- 価格
- 1,490 万円
- 交通
-
南海電鉄高野線 萩原天神駅 まで 徒歩4分
南海電鉄高野線 初芝駅 まで 徒歩10分
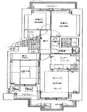
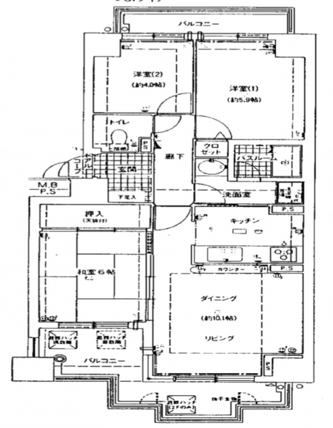
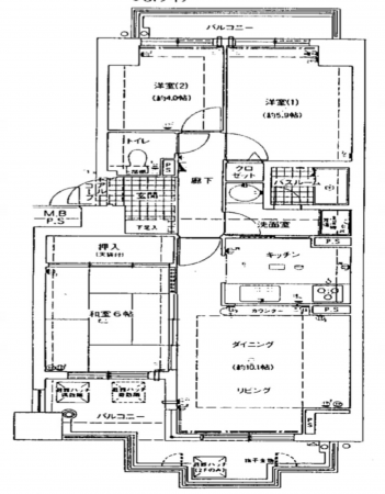
- 専有面積
- 壁芯 64.16㎡
- バルコニー
- 14.28㎡
- 間取り
- 3LDK
- 所在階/階数
- 6階 / 14階
- 築年数
-
1992年
(平成4)
3月
築33年 - 建ぺい率
- 容積率
- 土地権利
- 所有権
- 構造および階数
- SRC(鉄骨鉄筋コンクリート) 造 地上14階建
- 総戸数
- 143戸
- 小学校区
- 日置荘 (500m)
- 中学校区
- 地目
- 現況
- 空
- 引渡時期
- 相談
- 駐車場
- 空有
- 駐車場月額
- 管理形態
- 全部委託
- 管理方式
- 管理人日勤
- 管理会社
- キクタメンテナンス
- 管理費
- 6,900円
- 修繕積立費
- 8,680円
- 上水道
- 公共
- 下水道
- 公共
- ガス
- 都市ガス
- 都市計画
- 市街化区域
- 用途地域
- 1種住居
- 設備・条件
- システムキッチン、カウンターキッチン、ペット可
- 備考
- 取引態様
- 仲介

