マンションライオンズマンション大仙公園
◆2026年1月リフォーム済み ◆大仙公園まで徒歩1分! ◆緑豊かな住宅地 ◆バルコニー南西向き
【リフォーム内容】
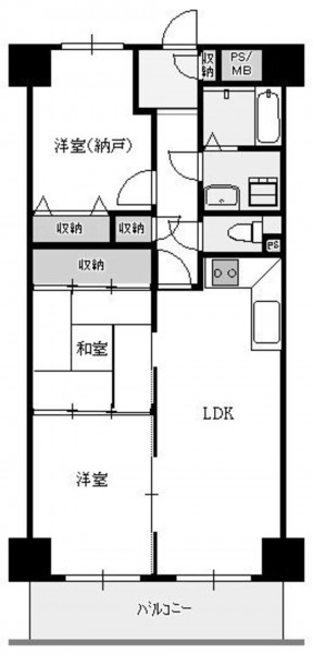
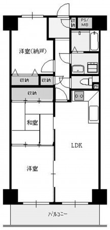
◆交換:ユニットバス・洗面化粧台 ◆新調:畳・襖 ◆全室クロス張替 ◆LDK、廊下、洋室フローリング張替え
物件概要
- 所在地
- 堺市堺区大仙中町
- 価格
- 2,180 万円
- 交通
-
JR阪和線 百舌鳥駅 まで 徒歩14分
- 専有面積
- 壁芯 63.25㎡
- バルコニー
-
(南西側)
7.70㎡ - 間取り
- 3LDK
- 所在階/階数
- 2階 / 8階
- 築年数
-
1987年
(昭和62)
8月
築38年 - 建ぺい率
- 容積率
- 土地権利
- 所有権
- 構造および階数
- RC(鉄筋コンクリート) 造 地上8階建
- 総戸数
- 85戸
- 小学校区
- 大仙
- 中学校区
- 旭
- 地目
- 現況
- 空
- 引渡時期
- 相談
- 駐車場
- 空無
- 駐車場月額
- 13,000円/月
- 管理形態
- 全部委託
- 管理方式
- 管理人日勤
- 管理会社
- 合人社計画研究所
- 管理費
- 8,500円
- 修繕積立費
- 12,780円
- 上水道
- 公共
- 下水道
- 公共
- ガス
- 都市ガス
- 都市計画
- 市街化区域
- 用途地域
- 2種中高
- 設備・条件
- システムキッチン、シャンプードレッサー、洗浄便座、モニタ付インターホン、エレベーター
- 備考
- 取引態様
- 仲介

