マンショングランシスフォート中百舌鳥弐番館
◆中百舌鳥エリアのペット飼育可マンション ◆3LDK
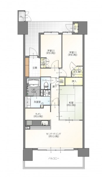
◆専有面積76.40㎡(壁芯)
◆バルコニー面積12.72㎡のワイドタイプ
◆南東向き採光で日当たり良好
◆浴室は換気しやすい窓付き
◆機能的な家事動線の間取
◆キッズプラザ等充実の共用スペース
【周辺環境】
・セブンイレブン堺中百舌鳥6丁店(約180m)
・万代 なかもず店(約750m)
・サンプラザ 中百舌鳥店(約800m)
・ダイエーグルメシティ 中もず店(約800m)
・スギドラッグ 中百舌鳥店(約750m)
物件概要
- 所在地
- 堺市北区中百舌鳥町6丁
- 価格
- 3,580 万円
- 交通
-
南海電鉄高野線 白鷺駅 まで 徒歩5分
大阪メトロ御堂筋線 なかもず駅 まで 徒歩10分
南海泉北線 中百舌鳥駅 まで 徒歩11分
- 専有面積
- 壁芯 76.40㎡
- バルコニー
-
12.72㎡
(南東側)
- 間取り
- 3LDK
- 所在階/階数
- 2階 / 14階
- 築年数
-
2003年
(平成15)
10月
築22年 - 建ぺい率
- 容積率
- 土地権利
- 所有権
- 構造および階数
- RC(鉄筋コンクリート) 造 地上14階建
- 総戸数
- 432戸
- 小学校区
- 中百舌鳥 (800m)
- 中学校区
- 中百舌鳥 (520m)
- 地目
- 現況
- 空
- 引渡時期
- 相談
- 駐車場
- 空無
- 駐車場月額
- 2,000〜5,000円/月
- 管理形態
- 全部委託
- 管理方式
- 管理人日勤
- 管理会社
- 長谷工コミュニティ
- 管理費
- 9,940円
- 修繕積立費
- 15,890円
- 上水道
- 公共
- 下水道
- 公共
- ガス
- 都市ガス
- 都市計画
- 市街化区域
- 用途地域
- 近隣商業
- 設備・条件
- システムキッチン、カウンターキッチン、シャンプードレッサー、洗浄便座、ウォークインクローゼット、モニタ付インターホン、オートロック、ペット可、エレベーター
- 備考
- 取引態様
- 仲介

